Consultoría en ingeniería estructural
Soluciones de diseño estructural, evaluación y soporte técnico para proyectos de edificación, infraestructura e industria
¿Por qué lo hacemos?
La informalidad en la construcción y la alta vulnerabilidad sísmica en el país hacen indispensable el uso de criterios técnicos adecuados. Promovemos una cultura de construcción segura, basada en normativa, análisis estructural y decisiones técnicas responsables.
¿A quién acompañamos?
Trabajamos con desarrolladores y empresas del sector construcción que requieren soporte especializado en ingeniería estructural para el desarrollo de sus proyectos.
También brindamos asesoría técnica a propietarios que necesitan evaluar o desarrollar proyectos de vivienda.Servicios especializados de ingeniería para el desarrollo de proyectos
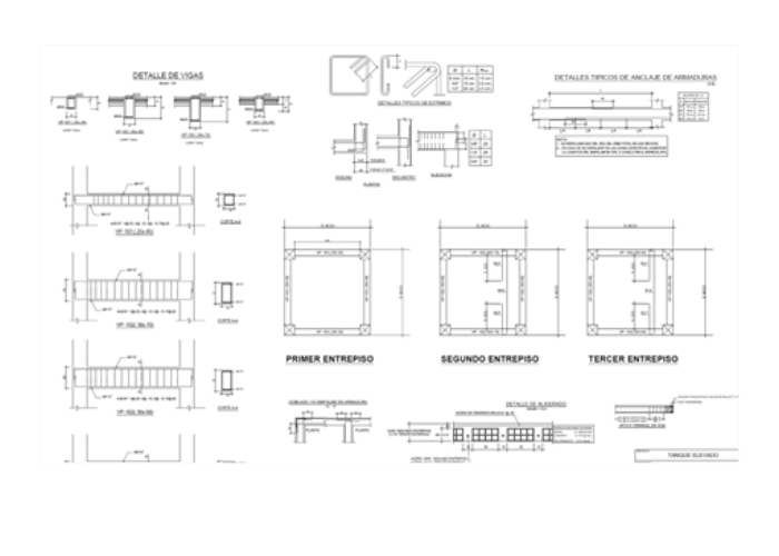
Ingeniería Estructural
Desarrollo de ingeniería conceptual, básica y de detalle para proyectos de edificación e infraestructura.
Evaluación Estructural
Diagnóstico y análisis técnico de estructuras existentes para determinar su condición estructural.
Soporte Técnico
Apoyo especializado para empresas que requieren apoyo en expedientes técnicos y procesos de licitación.
Proyectos de Vivienda
Desarrollo de ingeniería estructural para proyectos residenciales unifamiliares y multifamiliares.
Diseño – diagnóstico – apoyo técnico – especialización
Ingeniería estructural aplicada a proyectos de edificación, infraestructura e industria
Acompañamos a desarrolladores en el diseño estructural de sus proyectos, garantizando soluciones eficientes, seguras y adaptadas a cada necesidad.
- Tipo de cliente: Desarrollo inmobiliario
- Ubicación: Lima Sur
- Alcance del servicio: Diseño estructural
- Tipo de cliente: Empresa audiovisual TV
- Ubicación: Lima
- Alcance del servicio: Evaluación estructural
- Tipo de cliente: Sector comercial
- Ubicación: Lima
- Alcance del servicio: Diseño estructural
